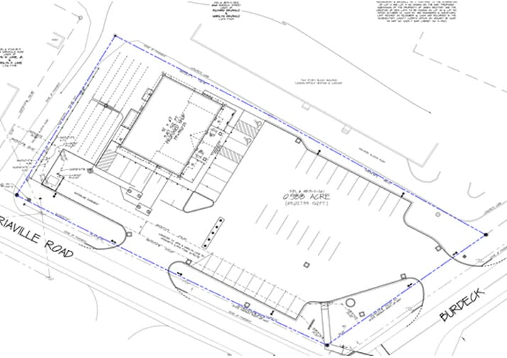
An old Stewarts Shops just for you! This renovated +/- 3,417 sq ft building is available for sale or Lease! Great Corner lot with ~7,000 vehicles per day.

Download the For Sale/Lease: 672 Mariaville Rd, Rotterdam NY 12306 flyer
An old Stewarts Shops just for you! This renovated +/- 3,417 sq ft building is available for sale or Lease! Great Corner lot with ~7,000 vehicles per day.

Download the For Sale/Lease: 672 Mariaville Rd, Rotterdam NY 12306 flyer